|
|
|||||||
Obszar plan obejmował tereny zawarte pomiędzy ulicami: Jasnogórską, Conrada, przedłużeniem ul. Weissa (w kierunku północnym) oraz ciekiem wodnym towarzyszącym potokowi Sudół.
Wnioski do planu zostały rozpatrzone przez Prezydenta Miasta Krakowa w terminie 21 dni od dnia upływu terminu ich składania zgodnie z art. 17 pkt 3 ustawy z dnia 27 marca 2003 r. o planowaniu i zagospodarowaniu przestrzennym (wersja obowiązująca do dnia 20 października 2010 r.). Uwagi do wyłożonego do publicznego wglądu projektu planu zostały rozpatrzone przez Prezydenta Miasta Krakowa w terminie 21 dni od dnia upływu terminu ich składania zgodnie z art. 17 pkt 12 ustawy z dnia 27 marca 2003 r. o planowaniu i zagospodarowaniu przestrzennym. Rozpatrzenia wniosków i uwag złożonych do miejscowego planu zagospodarowania przestrzennego następują w formie Zarządzeń Prezydenta Miasta Krakowa, które są publikowane w Biuletynie Informacji Publicznej Miasta Krakowa.
(4) PROJEKT UCHWAŁY RMK PRZEKAZANY DO ODSTĄPIENIA OD SPORZĄDZENIA
DRUK NR 98:
STENOGRAMY Z SESJI RADY MIASTA KRAKOWA:
Stenogram z sesji IX – 2 marca 2011 r.
Stenogram z sesji X – 16 marca 2011 r.
(3) PROJEKT PLANU PONOWNIE WYŁOŻONY (W CZĘŚCI) DO PUBLICZNEGO WGLĄDU w dniach od 18 kwietnia do 19 maja 2006 r.
Projekt ustaleń planu (tekst planu – projekt uchwały w sprawie uchwalenia planu - druk nr 1066)
Projekt rysunku planu (ok. 1 MB)
Projekt rysunku infrastruktury technicznej (ok. 2 MB)
Stenogram z dyskusji publicznej_(2) przeprowadzonej w dniu 4 maja 2006 r. (wyłączona jawność)*
* wyłączenie jawności na podstawie przepisów o ochronie danych osobowych
(2) PROJEKT PLANU PRZEKAZANY POD OBRADY RADY MIASTA KRAKOWA
zarządzeniem Nr 1591/2005 Prezydenta Miasta Krakowa z dnia 30 sierpnia 2005 r.
DRUK NR 1066:
Projekt ustaleń planu (tekst planu – projekt uchwały w sprawie uchwalenia planu)
Projekt rysunku planu – załącznik nr 1 do uchwały
Projekt rysunku infrastruktury technicznej – załącznik nr 2 uchwały
Rozstrzygnięcie o sposobie rozpatrzenia uwag złożonych do projektu planu
– załącznik nr 3 do uchwały (wyłączona jawność)*
Rozstrzygnięcie o sposobie realizacji zapisanych w planie inwestycji z zakresu infrastruktury technicznej,
które należą do zadań własnych gminy oraz zasadach ich finansowania – załącznik nr 4 do uchwały
STENOGRAMY Z SESJI RADY MIASTA KRAKOWA:
Stenogram z sesji XCI – 12 października 2005 r.
Stenogram z sesji XCVIII – 21 grudnia 2005 r.
* wyłączenie jawności na podstawie przepisów o ochronie danych osobowych
(1) PROJEKT PLANU WYŁOŻONY DO PUBLICZNEGO WGLĄDU w dniach od 28 lutego do 29 marca 2005 r.
Projekt ustaleń planu (tekst planu – projekt uchwały w sprawie uchwalenia planu)
Projekt rysunku planu (ok. 1 MB)
Projekt rysunku infrastruktury technicznej (ok. 1 MB)
Stenogram z dyskusji publicznej_(1) przeprowadzonej w dniu 4 kwietnia 2005 r. (wyłączona jawność)*
* wyłączenie jawności na podstawie przepisów o ochronie danych osobowych
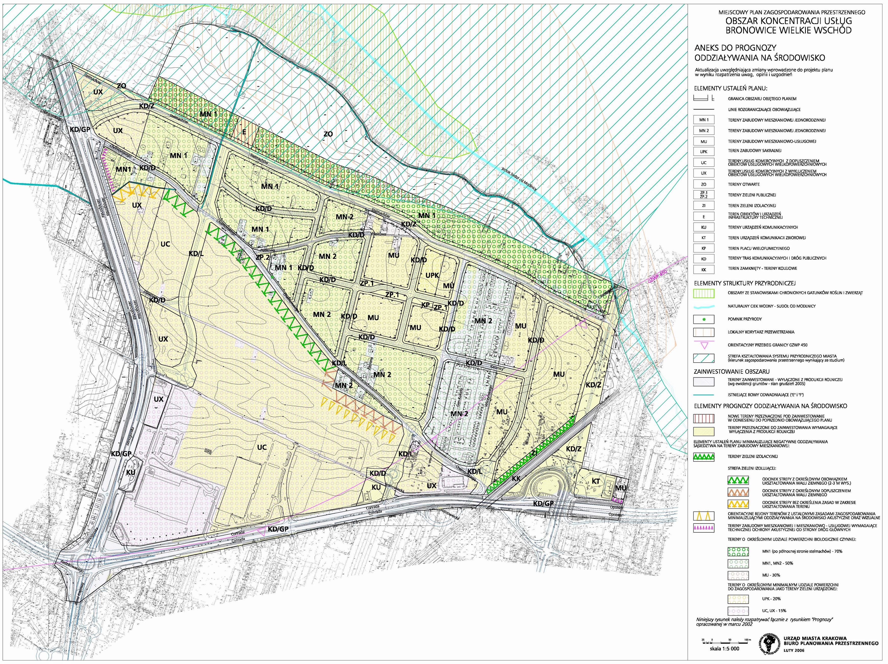
PROGNOZA DO WYŁOŻONEGO PROJEKTU PLANU od dnia 18 kwietnia do 19 maja 2006 r.
Prognoza oddziaływania na środowisko (ok. 1 MB)
Załącznik graficzny do prognozy oddziaływania na środowisko (ok. 2 MB)
(3) OGŁOSZENIE PREZYDENTA MIASTA KRAKOWA z dnia 7 kwietnia 2006 r.
o ponownym wyłożeniu do publicznego wglądu części projektu miejscowego planu zagospodarowania przestrzennego Obszaru Koncentracji Usług - Bronowice Wielkie Wschód w zakresie wprowadzonych zmian wynikających z przyjęcia przez Radę Miasta Krakowa poprawek wniesionych do projektu planu wraz z prognozą oddziaływania na środowisko.
Na podstawie art. 17 pkt 10, w związku z art. 19 ust. 1 i ust. 2 ustawy z dnia 27 marca 2003 r. o planowaniu i zagospodarowaniu przestrzennym (Dz. U. Nr 80, poz. 717 z późn. zm.) oraz uchwały Nr LXI/493/00 Rady Miasta Krakowa z dnia 27 września 2000 r. w sprawie przystąpienia do sporządzania miejscowego planu zagospodarowania przestrzennego Obszaru Koncentracji Usług - Bronowice Wielkie Wschód,
zawiadamiam
o ponownym wyłożeniu do publicznego wglądu części projektu miejscowego planu zagospodarowania przestrzennego Obszaru Koncentracji Usług - Bronowice Wielkie Wschód w zakresie wprowadzonych zmian wynikających z przyjęcia przez Radę Miasta Krakowa poprawek wniesionych do projektu uchwały w sprawie uchwalenia miejscowego planu zagospodarowania przestrzennego Obszaru Koncentracji Usług - Bronowice Wielkie Wschód (druk nr 1066 po I czytaniu projektu uchwały), obejmujących:
Wyłożenie odbędzie się w dniach od 18 kwietnia do 19 maja 2006 r. (z wyjątkiem sobót, niedziel i świąt), w Biurze Planowania Przestrzennego Urzędu Miasta Krakowa, 30-542 Kraków, ul. Za Torem 22, w godzinach:
Zgodnie z art. 18 ust. 1 ustawy, każdy, kto kwestionuje ustalenia przyjęte w wyniku wprowadzonych zmian w projekcie planu miejscowego, może wnieść uwagi w tym zakresie. Uwagi należy składać na piśmie z podaniem imienia i nazwiska lub nazwy jednostki organizacyjnej i adresu oraz oznaczenia nieruchomości, której uwaga dotyczy, w nieprzekraczalnym terminie do dnia 2 czerwca 2006 r. w Biurze Planowania Przestrzennego Urzędu Miasta Krakowa lub na jego adres, podany w niniejszym ogłoszeniu.
Dyskusja publiczna nad rozwiązaniami przyjętymi w projekcie planu miejscowego zostanie przeprowadzona w dniu 4 maja 2006 r., w Urzędzie Miasta Krakowa, pl. Wszystkich Świętych 3-4, Sala Lea, początek o godz. 13:30.
Jednocześnie działając na podstawie art. 32 ust. 1 pkt 1 i ust. 2, w związku z art. 34 ust. 1 i art. 43 ust. 2 i 3 ustawy z dnia 27 kwietnia 2001 r. Prawo ochrony środowiska (Dz. U. z 2001 r. Nr 62, poz. 627 z późn. zm.) informuję, że w publicznie dostępnym wykazie danych o dokumentach zawierających informacje o środowisku i jego ochronie, o którym mowa w art. 19 ust. 6 ustawy Prawo ochrony środowiska, zamieszczono informacje:
Zgodnie z art. 40 ust.1 przywoływanej ustawy – Prawo ochrony środowiska – projekt miejscowego planu zagospodarowania przestrzennego wymieniony wyżej poddaje się z udziałem społeczeństwa postępowaniu w sprawie oceny oddziaływania na środowisko w okresie wyłożenia do publicznego wglądu, o którym mowa wcześniej.
Wnioski i uwagi w postępowaniu w sprawie oceny oddziaływania na środowisko można składać na piśmie w terminie do dnia 2 czerwca 2006 r. w Biurze Planowania Przestrzennego Urzędu Miasta Krakowa lub na jego adres, podany w Ogłoszeniu.
(2) OGŁOSZENIE PREZYDENTA MIASTA KRAKOWA z dnia 18 lutego 2005 r.
o wyłożeniu do publicznego wglądu projektu miejscowego planu zagospodarowania przestrzennego Obszaru Koncentracji Usług - Bronowice Wielkie Wschód wraz z prognozą oddziaływania na środowisko.
Na podstawie art. 17 pkt 10 ustawy z dnia 27 marca 2003 r. o planowaniu i zagospodarowaniu przestrzennym (Dz. U. Nr 80, poz. 717 z późn. zm.) w związku z uchwałą Rady Miasta Krakowa, Nr LXI/439/00 z dnia 27 września 2000 r. w sprawie przystąpienia do sporządzenia miejscowego planu zagospodarowania przestrzennego Obszaru Koncentracji Usług - Bronowice Wielkie Wschód,
zawiadamiam
o wyłożeniu do publicznego wglądu projektu miejscowego planu zagospodarowania przestrzennego dla obszaru obejmującego tereny zawarte pomiędzy ulicami: Jasnogórską, Conrada, przedłużeniem ul. Weissa (w kierunku północnym) oraz ciekiem wodnym towarzyszącym potokowi Sudoł oraz o wyłożeniu prognozy oddziaływania na środowisko, sporządzonej do ww. planu – w dniach od 28 lutego do 29 marca 2005 r. (z wyjątkiem sobót i niedziel), w Biurze Planowania Przestrzennego Urzędu Miasta Krakowa, ul. Za Torem 22 (pok. nr 16) w godz. 10:00–12:00.
Dyskusja publiczna nad rozwiązaniami przyjętymi w projekcie planu miejscowego zostanie przeprowadzona w dniu 18 marca 2005 r., w Urzędzie Miasta Krakowa, pl. Wszystkich Świętych 3-4, Sala Kupiecka, o godz. 13:00.
Zgodnie z art. 18 ust. 1 ustawy, każdy, kto kwestionuje ustalenia przyjęte w projekcie planu miejscowego, może wnieść uwagi. Uwagi do projektu planu należy składać na piśmie, z podaniem imienia i nazwiska lub nazwy jednostki organizacyjnej i adresu, oznaczenia nieruchomości, której uwaga dotyczy, w nieprzekraczalnym terminie do dnia 12 kwietnia 2005 r. w Biurze Planowania Przestrzennego Urzędu Miasta Krakowa, lub na jego adres, podany w niniejszym Ogłoszeniu.
Jednocześnie działając na podstawie art. 32 ust. 1 pkt 1 i 3, ust.2, w związku z art. 34 ust. 1 i art. 43 ust. 2 i 3 ustawy z dnia 27 kwietnia 2001 r. Prawo ochrony środowiska (Dz. U. z 2001 r. Nr 62, poz. 627 z późn. zm.) informuję, że w publicznie dostępnym wykazie danych o dokumentach zawierających informacje o środowisku i jego ochronie, o którym mowa w art. 19 ust. 6 ustawy Prawo ochrony środowiska, zamieszczono informacje:
Z wyżej wymienionymi dokumentami można zapoznać się w Biurze Planowania Przestrzennego Urzędu Miasta Krakowa, ul. Za Torem 22. Projekt miejscowego planu zagospodarowania przestrzennego wymieniony wyżej oraz prognozę oddziaływania na środowisko poddaje się „postępowaniu w sprawie oceny oddziaływania na środowisko” z udziałem społeczeństwa. Dokumenty te będą wyłożone do publicznego wglądu w dniach od 28 lutego do 29 marca 2005 r. (z wyjątkiem sobót i niedziel) w Biurze Planowania Przestrzennego Urzędu Miasta Krakowa, ul. Za Torem 22 (pok. nr 16) w godz. 10:00–12:00.
Wnioski i uwagi w postępowaniu w sprawie oceny oddziaływania na środowisko można składać na piśmie w terminie do dnia 29 marca 2005 r. w Biurze Planowania Przestrzennego Urzędu Miasta Krakowa lub na jego adres, podany w Ogłoszeniu.
(1) OGŁOSZENIE PREZYDENTA MIASTA KRAKOWA z dnia 21 maja 2004 r.
o przystąpieniu do sporządzenia miejscowego planu zagospodarowania przestrzennego Obszaru Koncentracji Usług - Bronowice Wielkie Wschód.
Na podstawie art. 17 pkt. 1 oraz w związku z art. 85 ust. 2 ustawy z dnia 27 marca 2003 r. o planowaniu i zagospodarowaniu przestrzennym (Dz. U. Nr 80, poz. 717 z późn. zm.),
zawiadamiam
ponownie o podjęciu przez Radę Miasta Krakowa uchwały Nr LXI/439/00 z dnia 27 września 2000 r. w sprawie przystąpienia do sporządzenia miejscowego planu zagospodarowania przestrzennego Obszaru Koncentracji Usług - Bronowice Wielkie Wschód obejmującego tereny zawarte pomiędzy ulicami: Jasnogórską, Conrada, przedłużeniem ul. Weissa (w kierunku północnym) oraz ciekiem wodnym towarzyszącym potokowi Sudoł.
Granice obszaru objętego sporządzanym planem określa załącznik graficzny
Zainteresowani mogą składać wnioski do wyżej wymienionego planu miejscowego. Wnioski należy składać na piśmie – w Punkcie Obsługi Mieszkańców Urzędu Miasta Krakowa, Rynek Podgórski 1, lub – drogą pocztową na adres: Urząd Miasta Krakowa, Biuro Planowania Przestrzennego, Rynek Podgórski 1, 30-533 Kraków, w terminie do dnia 25 czerwca 2004 r. Wniosek powinien zawierać: nazwisko, imię, nazwę i adres wnioskodawcy, określenie przedmiotu wniosku oraz oznaczenie nieruchomości, której dotyczy. Pomocne będzie dołączenie kserokopii wyrysu z mapy zasadniczej lub ewidencyjnej, z oznaczeniem granic terenu, którego dotyczy wniosek.
Sporządzanie planu podlega od 11 lipca 2003 r. przepisom ustawy o planowaniu i zagospodarowaniu przestrzennym, przywoływanej na wstępie. W związku z tym, wnioski do planu, złożone wcześniej – w wyniku ogłoszenia (obwieszczenia, komunikatu) opublikowanego wg przepisów poprzedniej ustawy o zagospodarowaniu przestrzennym – powinny zostać odpowiednio: ponowione, potwierdzone, zaktualizowane lub wycofane – w terminie określonym w Ogłoszeniu.
ZARZĄDZENIA PREZYDENTA MIASTA KRAKOWA:
* wyłączenie jawności na podstawie przepisów o ochronie danych osobowych
OPINIE KOMISJI PLANOWANIA PRZESTRZENNEGO I OCHRONY ŚRODOWISKA RADY MIASTA KRAKOWA:
Powrót do listy planów odstąpionych