|
|
|||||||
Tekst planu (uchwała Nr LV/532/04 w sprawie uchwalenia planu)
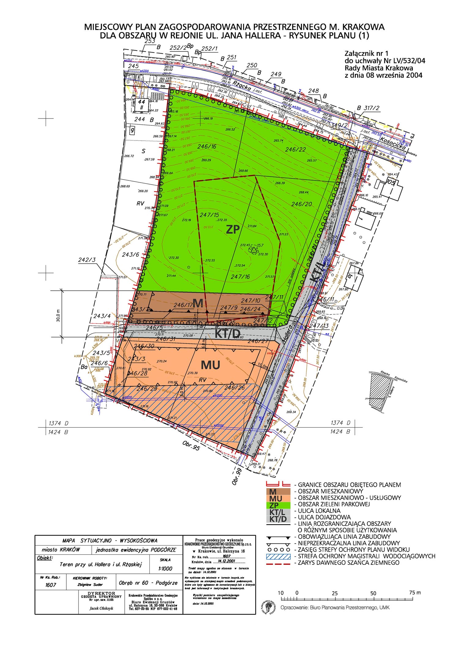
Rysunek planu – załącznik nr 1 do uchwały (JPG ok. 1 MB)
Rysunek infrastruktury technicznej – załącznik nr 2 do uchwały (PDF ok. 1 MB)
Plik GML (plik można otworzyć korzystając m.in. z Portalu Gov.pl)
Elementy planu w postaci wektorowej są dostępne na warstwie Planowanie przestrzenne/Przeznaczenia MPZP udostępnionej w kompozycjach mapowych Miejskiego Systemu Informacji Przestrzennej (m.in. Mapa dla architektów i planistów, Przestrzeń miejska i planowanie). Sposób ich pobrania opisany jest na stronie Usługa pobierania GD-35 – MSIP - Biuletyn Informacji Publicznej Miasta Krakowa - BIP MK oraz MSIP - Biuletyn Informacji Publicznej Miasta Krakowa - BIP MK. Dodatkowo na warstwie Planowanie przestrzenne/Plany obowiązujące w oknie otwierającym się po wskazaniu planu dodano łącza do pobrania plików legendy oraz GeoTIFF. Niezależnie od powyższych opcji, możliwe jest pobranie tych danych w formatach shp, dxf, json oraz poprzez usługę WFS na stronie MSIP.
Uwaga:
Od dnia 1 lipca 2020 r. w Krakowie obowiązują nowe zasady sytuowania obiektów małej architektury, tablic reklamowych i urządzeń reklamowych oraz ogrodzeń. Zasady te zostały określone w tzw. uchwale krajobrazowej tj. w uchwale Nr XXXVI/908/20 Rady Miasta Krakowa z dnia 26 lutego 2020 r. w sprawie ustalenia „Zasad i warunków sytuowania obiektów małej architektury, tablic reklamowych i urządzeń reklamowych oraz ogrodzeń” (Dz.Urz.W.M. z dnia 9 marca 2020 r., poz. 1984). Ustalenia tzw. uchwały krajobrazowej zastępują dotychczasowe zapisy planów miejscowych dotyczące małej architektury, reklam (w tym szyldów) i ogrodzeń – odnośnik do strony z uchwałą krajobrazową.